- Wohneinheitenfläche
- Um 58 m²
- Inhalt
- Um 210 m³
- Baujahr
- Baujahr 1959
- Anzahl der Zimmer
- 3 Räume (2 Schlafzimmer)
## HAUS ZU VERKAUFEN - ENGLISCH HINTERHER ##
A'dam Good Story presenteert WILLEM de ZWIJGERLAAN 334 D-11!
Royaal appartement met vrij uitzicht over de lengte van de woning.
Veel lichtinval en een open plattegrond welke tot de verbeelding spreekt.
Urban living in Bos en Lommer, nabij het Westerpark en met alles binnen bereik; Sport, Horeca, Supermarkt, en de lokale specialist.
Bel ons vandaag voor een bezichtigingsaanvraag.
Deze woning beschikt over de volgende kenmerken:
• Royale woonkamer met 3 meter hoge plafonds;
• Vrij uitzicht over de volle breedte (circa 10meter);
• 2 slaapkamers of 1 slaapkamer en 1 werkkamer waarbij de mogelijkheid bestaat een loft te maken voor maximaal gebruik;
• Ruime entree met twee liften, mooi trappenhuis;
• Moderne voorzieningen zoals gezamenlijke fietsenstalling en gedeelde ruimte met wasmachines;
• Gezonde en actieve VvE;
• Servicekosten €191,56, p.mnd;
• 2013 transformatie van kantoorpand naar appartementen, gerenoveerd portiek en gevels (2023), onderhoud en controle installaties 2024;
• Jaarlijkse erfpacht €533,34 (2024), Onder de meeste gevallen is de jaarlijkse canon aftrekbaar. De erfpacht zal jaarlijks geïndexeerd worden. De erfpacht is door de notaris goedgekeurd middels een 'groene opinie', wat inhoudt dat de voorwaarden als juridisch en financieel gezond worden beschouwd, benodigd voor een hypothecaire financiering;
• Oplevering kan snel;
• Notariskeuze aan koper, mits in Amsterdam.
Dit royale 3-kamer appartement kenmerkt zich door de gunstige ligging ten opzichte van de stad. Zeer gunstig gelegen nabij alle uitvalswegen, het Westerpark en het centrum terwijl u de rust en de ruimte ervaart.
Architecten Gietermans & van Dijk herontwikkelde dit pand tot appartementen, waarbij veel oog was voor ruimte en gezamenlijk gebruik met alle voorzieningen in de nabije omgeving, in 2013.
Voor ieders wat wils; bouwmarkt en sportschool zijn opgenomen in het pand, Boulders en Padel nextdoor en de meest bekende zuurpruim op de hoek (Kesbeke :).
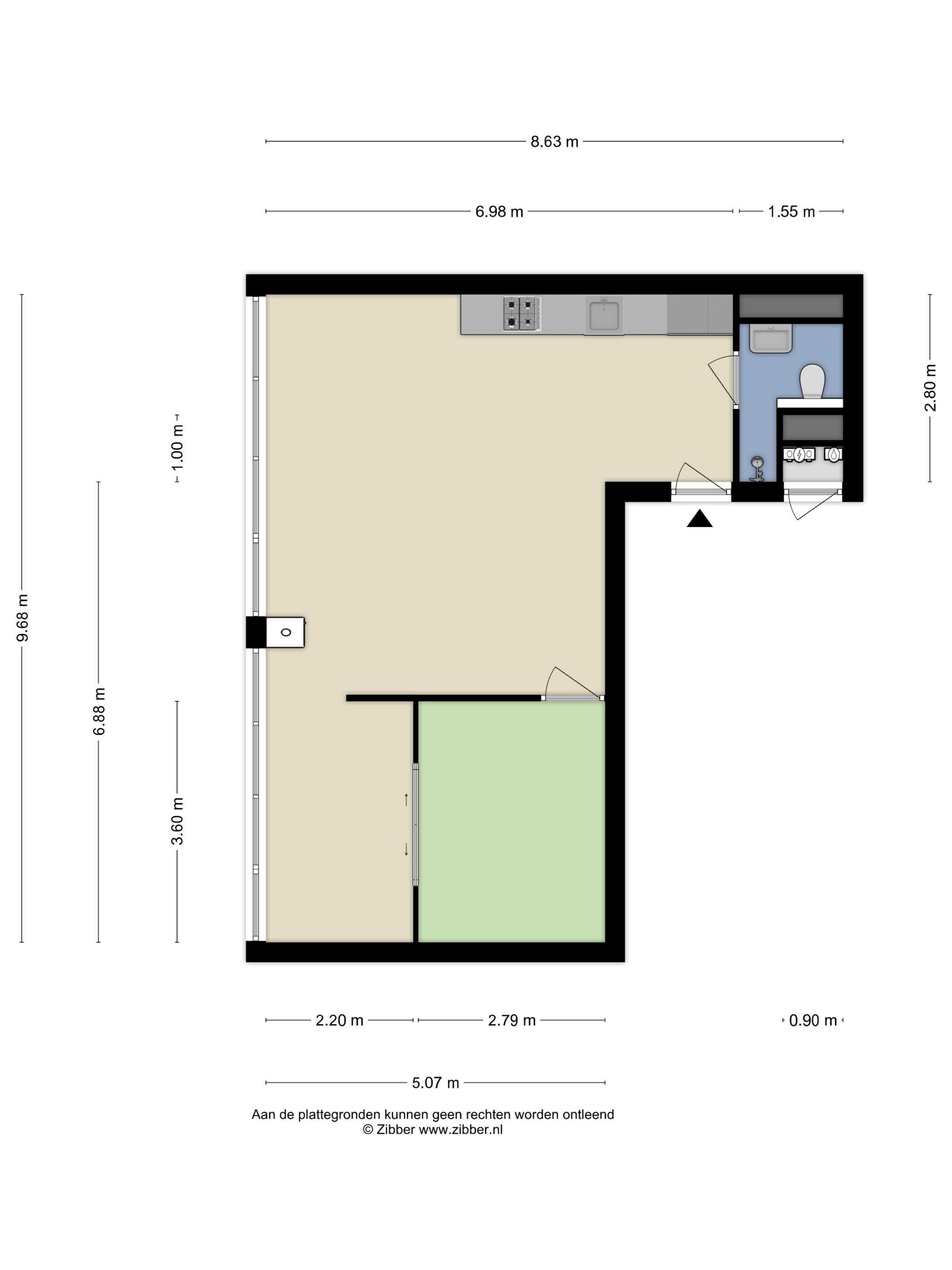
I N D E L I N G
Via de centrale ruimte en de lift komt u op de derde verdieping. Lopend door het voormalige kantoorpand kom je al snel bij dit prachtige appartement, gelegen op de hoek met een waanzinnig uitzicht wat nooit gaat vervelen.
Direct rechts de sanitaire ruimte en voor u de open keuken waar de boodschappen direct opgeruimd kunnen worden.
Het licht komt je tegemoet en de open ruimte nodigt uit om lekker de dag door te nemen, even weg van de drukte en gehaast in de stad.
De open woonkamer is ook ideaal om vrienden en familie uit te nodigen of een feestje te geven, het pand is zeer goed geïsoleerd en de buren hoor je er zelden.
Aan de voorkant een heerlijke (werk)kamer waar het licht ook vrij binnen kan komen. De ligging is optimaal voor prachtige avonden en zwoele zomeravonden omdat de zon niet rechtstreeks binnen schijnt en het heerlijk koel blijft.
De slaapkamer is vernuftige ontworpen met raampartij en schuifraam voor privacy en frisse lucht.
Hier is eenvoudig een vlonder te realiseren zodat er meer ruimte overblijft voor creatief talent of een waanzinnige kinderkamer met een eigen bank en televisie!
Na de hectiek van de stad komt u hier volledig tot rust.
L O C A T I E
Gelegen in de wijk Bos en Lommer, bekend om zijn diversiteit en hippe concepten zoals Fuku, Farine Bakery en Bistro Bos.
Maar ook Boulders, Padel Next en Sportcity zijn hier naast de Albert Heijn om de hoek en de lokale speciaalzaken.
Makkelijk te bereiken met de fiets of lopend en voor bezoekers is er voldoende parkeergelegenheid en zelfs een hotel nabij.
Vanuit hier zit u zo op alle uitvalswegen en neemt u makkelijk het openbaar vervoer welke u naar centraal station of de luchthaven brengt.
Het Westerpark om de hoek voor de jaarlijkse festivals, een avondje film kijken in het Ketelhuis, yoga in het park of de Sunday Market ... life is good!
C O N C L U S I E
Veel rust en ruimte en ideaal gelegen voor wonen en werken.
I N T E R E S S E
Bel dan A’dam Good Story voor een bezichtiging 06-40340437
Bij A’dam Good Story hebben wij het vermogen de juiste scène te creëren voor de aan- en verkoop van uw woning. Onze Antroposofische makelaar zet uw woning in het juiste licht met behulp van natuurlijke styling, professionele fotografie en meeslepende teksten. Onze bezichtigingen zijn een unieke beleving, want begeleid met de juiste catering en sfeervolle muziek.
Deze informatie is door ons met zorgvuldigheid samengesteld. Onzerzijds wordt echter geen enkele aansprakelijkheid aanvaard voor enige onvolledigheid, onjuistheid of anderszins, dan wel de gevolgen daarvan.
## ENGLISH TEXT ##
A'dam Good Story presents WILLEM de ZWIJGERLAAN 334 D-11!
Spacious apartment with unobstructed views along the length of the property.
Lots of natural light and an open floor plan that appeals to the imagination.
Urban living in Bos en Lommer, near Westerpark and with everything within reach: sports, restaurants, supermarket, and local specialists.
Call us today to request a viewing.
This property has the following features:
• Spacious living room with 3-meter-high ceilings;
• Unobstructed view across the entire width (approximately 10 meters);
• 2 bedrooms or 1 bedroom and 1 study with the possibility of creating a loft for maximum use;
• Spacious entrance with two elevators, beautiful staircase;
• Modern amenities such as communal bicycle storage and shared laundry room with washing machines;
• Healthy and active homeowners' association;
• Service charges €191.56 per month;
• 2013 transformation from office building to apartments, renovated porch and facades (2023), maintenance and inspection of installations 2024;
• Annual ground rent €533.34 (2024). In most cases, the annual ground rent is tax deductible. The ground rent will be indexed annually. The ground rent has been approved by the notary by means of a ‘green opinion’, which means that the conditions are considered legally and financially sound, as required for mortgage financing;
• Delivery can be quick;
• Choice of notary is up to the buyer, provided it is in Amsterdam.
This spacious 3-room apartment is characterized by its convenient location in relation to the city. It is very conveniently located near all major roads, Westerpark, and the city center, while offering peace and quiet.
Architects Gietermans & van Dijk redeveloped this building into apartments in 2013, with a focus on space and shared use with all amenities in the vicinity.
There is something for everyone; a hardware store and gym are included in the building, Boulders and Padel next door, and the most famous sourpuss on the corner (Kesbeke :).
L A Y O U T
The central hall and elevator take you to the third floor. Walking through the former office building, you quickly arrive at this beautiful apartment, located on the corner with an amazing view that you will never tire of.
Immediately to your right is the bathroom, and in front of you is the open kitchen where you can put away your groceries right away.
The light greets you and the open space invites you to enjoy the day, away from the hustle and bustle of the city.
The open living room is also ideal for inviting friends and family or throwing a party. The building is very well insulated and you rarely hear the neighbors.
At the front is a lovely (work) room where light can also enter freely. The location is ideal for beautiful evenings and balmy summer nights because the sun does not shine directly inside and it stays nice and cool.
The bedroom is ingeniously designed with windows and a sliding window for privacy and fresh air.
It would be easy to build a deck here, leaving more space for creative talent or an amazing children's room with its own sofa and television!
After the hustle and bustle of the city, you can completely unwind here.
L O C A T I O N
Located in the Bos en Lommer neighborhood, known for its diversity and trendy concepts such as Fuku, Farine Bakery, and Bistro Bos.
But also Boulders, Padel Next, and Sportcity are here, next to the Albert Heijn supermarket around the corner and the local specialty shops.
Easy to reach by bike or on foot, and for visitors there is ample parking and even a hotel nearby.
From here, you can easily reach all major roads and take public transportation to the central station or the airport.
Westerpark is just around the corner for annual festivals, an evening of movies at the Ketelhuis, yoga in the park, or the Sunday Market... life is good!
C O N C L U S I O N
Plenty of peace and space and ideally located for living and working.
I N T E R E S T E D
Call A’dam Good Story for a viewing 06-40340437.
At A’dam Good Story, we have the ability to create the right scene for the purchase and sale of your home. Our anthroposophical real estate agent will show your home in the best light using natural styling, professional photography, and compelling texts. Our viewings are a unique experience, accompanied by the right catering and atmospheric music.
This information has been compiled by us with care. However, we accept no liability for any incompleteness, inaccuracy, or otherwise, or the consequences thereof. Lees de volledige omschrijving
Übertrag
- Verhandlungspreis
- 400.000,- EUR
- Status
- verfügbar
- Hinnehme
- Im Gespräch
- Beitrag des VvE
- € 191,56 per maand
Bau
- Gegenstandsart
- Wohneinheit (Appartement)
- Bauart
- Existierende Bauwerke
- Baujahr
- 1959
- Dachart
- Flachdach mit bitumenverlegtem Dachziegel
Oberfläche und Inhalt
- Wohneinheitenfläche
- 58 m²
- Inhalt
- 210 m³
Einteilung
- Anzahl der Zimmer
- 3 Räume (2 Schlafzimmer)
- Anzahl der Badezimmer
- 1 Badezimmer
- Badezimmerausstattung
- Dusche, Toilette und Waschbecken
- Anzahl der Wohnetagen
- 1 Wohnetage
- Lage von
- 3. Wohnschicht
- Maßnahmen
- Glasvezelkabel, lift, mechanische ventilatie, en natuurlijke ventilatie
Energie
- Energietag
- C
- Energietag-Register
- 23-11-2023
- Isolation
- Doppelschicht Glas, Wandisolierung und Fußbodenisolierung
- Heizung
- Elektrische Wärmung
- Warmes Wasser
- Elektrischer Boiler
Außenraum
- Lage
- Aan rustige weg, aan water, bedrijventerrein, in centrum, open ligging en vrij uitzicht
Parkplatz
- Parkplatzart
- Bezahltes Parken, öffentliches Parkhaus, Parkdepot und Parkenscheine
VvE Überprüfungsliste
- Handelsregister eintragen
- Ja
- Jährliche Versammlung
- Ja
- Periodeische Beitragsleistung
- Ja (€ 191,56 per maand)
- Reservenkonto vorhanden
- Ja
- Wartungsplan
- Ja
- Stallversicherung
- Ja
Energieverbrauch ein Amsterdam
Energietag der Wohnung
Energielabel C
Energietagmenteil: 23-11-2023
Jahres-Stromverbrauch
(Durchschnitt Wohnung in Amsterdam)
Gaskonsum pro Jahr
(Durchschnitt Wohnung in Amsterdam)
* Zahlen stammen vom CBS und sollen als Indikatoren dienen und können für diese Wohnung unterschiedlich sein
Hypothekenbelastungen
Eigene Einlage:
Ersparnisse / Überwert
Zins:
Niedrigste 10-Jahres-Zinssatz
Niedrigste 10-Jahres-Zinssatz
2,85% - Centraal Beheer Groen... - NHG
3,08% - Centraal Beheer Groen... - 80%
Niedrigste 20-jährige Zinssatz
3,29% - Centraal Beheer Groen... - NHG
3,52% - Centraal Beheer Groen... - 80%
Niedrigste 30-jährige Zinssatz
3,41% - Centraal Beheer Groen... - NHG
3,74% - Centraal Beheer Groen... - 80%
Hypothek:
Bruttomonatslasten: € 0 p/m
Nettomonatskosten: € 0 p/m
Wie berechnen wir dies?
Der Zinssatz basiert auf dem niedrigsten 10-jährigen Festzins für einen einzelnen Hypothekenteil. Der angegebene Zinssatz (2.85% met NHG) wurde am 17-01-2026 überprüft. Diese Berechnung basiert auf einer Annuitätenhypothek, die vollständig zurückgezahlt wird, wobei die monatlichen Zahlungen während der gesamten Laufzeit gleich bleiben. Der tatsächliche Zinssatz und die monatlichen Nettokosten können je nach Ihrer persönlichen Situation und dem Hypothekengeber variieren. Wenden Sie sich für eine genaue Berechnung und Beratung an einen Finanzberater. Aus dieser Berechnung können keine Rechte abgeleitet werden; sie dient lediglich als Orientierung.
Dokumentation
Katasterkarte
Lebensumgebung
Planansichten PDF
Krankenkassenbeleg
Broschüre
Wertbescheinigung
Besichtigung
Boden verlegen
Wertschätzung
Suchanfrage
Alles herunterladen
Sonnengrenzen betrachten
Bewohner von Amsterdam
Zahlen für Postleitzahl-Region 1055
- Gesamtbevölkerungszahl
- 21180 Bewohner
- Männer
- 49%
- Frauen
- 51%
Bewohner von Amsterdam
Zahlen für Postleitzahl-Region 1055
- bis 15 Jahre
- 13%
- 15 bis 25 Jahre
- 12%
- 25 bis 35 Jahre
- 47%
- 45 bis 65 Jahre
- 20%
- 65 und älter
- 8%
Haushalte von Amsterdam
Zahlen für Postleitzahl-Region 1055
- Einpersonig ohne Kinder
- 57%
- Erwachsene ohne Kinder
- 22%
- Haushalte ohne Kinder
- 79%
Haushalte von Amsterdam
Zahlen für Postleitzahl-Region 1055
- Haushalte mit einem Kind
- 8%
- Haushalte mit mehreren Kindern
- 14%
- Haushalte mit Kindern
- 22%
Wohnungen in Amsterdam
Zahlen für Postleitzahl-Region 1055
- Wohnungen vor 1945
- 66%
- Wohnungen zwischen 1945 und 1965
- 22%
- Wohnungen zwischen 1965 und 1975
- 2%
- Wohnungen zwischen 1975 und 1985
- 1%
- Wohnungen zwischen 1985 und 1995
- 4%
Wohnungen in Amsterdam
Zahlen für Postleitzahl-Region 1055
- Wohnungen zwischen 1995 und 2005
- 1%
- Wohnungen zwischen 2005 und 2015
- 4%
- Wohnungen nach 2015
- 1%
- Mietwohnungen
- 70%
- Eigentumswohnungen
- 30%
Sonstige Einzahlungen Amsterdam
Zahlen für Postleitzahl-Region 1055
- Durchschnittliche WOZ-Wert
- € 333.000,-
- Personen unter 65 Jahren mit Hinterbliebenengeld
- 11%
Sonstige Einzahlungen Amsterdam
Zahlen für Postleitzahl-Region 1055
- Adressen pro Quadratkilometer
- 6917
- Urbanität (Skala von 1 bis 5)
- 100%
A'dam Good Story.com
Falls Sie Fragen haben oder eine Besichtigung planen möchten, können Sie das Formular rechts verwenden. Danach wird Ihnen kurzfristig jemand kontaktieren.
Claus van Amsbergstraat 38
1102AZ, Amsterdam
06 - 4034 0437 amsterdam@adamgoodstory.com www.adamgoodstory.comKontakt aufnehmen
A'dam Gute Geschichte
Neueste Bewertungen
-
Janusz Korczakstraat 0 ong
Drie jaar geleden heeft Joek (A'dam Good Story) ons op een uiterst professionele manier geadviseerd en begeleid bij de aankoop van een appar...
-
Jaap Groenenberg
Voor de verkoop van ons huis waren we op zoek naar een makelaar, die het net even anders doet dan anders. Via via hadden we over Joek gehoor...
-
Nadezjda Mandelstamstraat 15
Voor de verkoop van ons huis waren we op zoek naar een makelaar, die het net even anders doet dan anders. Via via hadden we over Joek gehoor...